Chi tiết dự án
Quy mô dự án Đức Giang Residence Long Biên

Phối cảnh tổng thể dự án Đức Giang Residence
Đức Giang Residence được xây dựng trên khu đất có tổng diện tích 54.312 m2 với mật độ xây dựng trung bình toàn khu 37,6%. Quy mô dự án bao gồm: 1 trường Trung học phổ thông có chiều cao 4 tầng với diện tích 11.377 m2, khu nhà phố liền kề, 3 tòa chung cư cao 21 tầng và còn lại là các khu tiện ích như hội trường, nhà hàng và sân bóng.

Sơ đồ mặt bằng quy hoạch tổng thể dự án
Sản phẩm thương mại của dự án bao gồm 53 lô đất nền liền kề có diện tích từ 100 m2 - 135 m2 và 831 căn hộ chung cư. Mỗi căn hộ có diện tích từ 58,2 m2 – 125 m2. được thiết kế có từ 2 – 4 phòng ngủ.

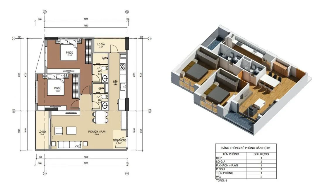
Sơ đồ thiết kế và mặt bằng căn hộ mẫu 2 phòng ngủ
Tiện ích nội khu dự án gồm có: trung tâm thương mại, trường học, nhà trẻ, sym, spa, bể bơi nước nóng, phòng sinh hoạt cộng đồng, khu sân vườn tiểu cảnh.

Phối cảnh bể bơi tại dự án
Đức Giang Residence có vị trí gần các tuyến đường Nam Đuống, AH17 và cách cầu Đông Trù 10 phút đi bộ. Từ dự án dư dân thuận tiện di chuyển đến các khu vực khác như: khu vực trung tâm thủ đô Hà Nội, sân bay Nội Bài…
Thông tin
Đức Giang Residence có chủ đầu tư là Công ty Cổ phần Tập đoàn Hóa chất Đức Giang, được thành lập từ năm 1963.
Đức Giang Residence có tên pháp lý đầy đủ là Tổ hợp công trình công cộng, trường học và nhà ở Đức Giang. Dự án đã được UBND TP. Hà Nội phê duyệt quy hoạch chi tiết 1/500 tại Quyết định số 4590/QĐ-UBND vào ngày 12/10/2020.
Thông tin nhanh Đức Giang Residence Long Biên
|
Dự án: Đức Giang Residence |
Tổng diện tích: 54.312 m2 |
|
Vị trí: Số 18/44 đường Đức Giang, phường Thượng Thanh, quận Long Biên, Hà Nội |
Tổng vốn đầu tư: |
|
Loại hình: Đất nền, căn hộ |
Ngày khởi công: Năm 2020 |
|
Chủ đầu tư: Công ty Cổ phần Tập đoàn Hóa chất Đức Giang |
Năm hoàn thành: Năm 2021 |