Chi tiết dự án
Quy mô dự án GHomes Cao Xanh Quảng Ninh

Phối cảnh dự án GHomes Cao Xanh
| Tổng diện tích | 4.101,3m2 |
| Tổng diện tích sàn xây dựng | 29.015,7m2 |
| Hệ số sử dụng đất | 7,1 lần |
| Mật độ xây dựng | 49,5% |
| Quy mô xây dựng | 2 tòa cao 10-18 tầng |
| Số lượng sản phẩm | 300 căn hộ |
| Quy mô dân số | 644 người |
Quy mô dự án GHomes Cao Xanh

Vị trí triển khai dự án

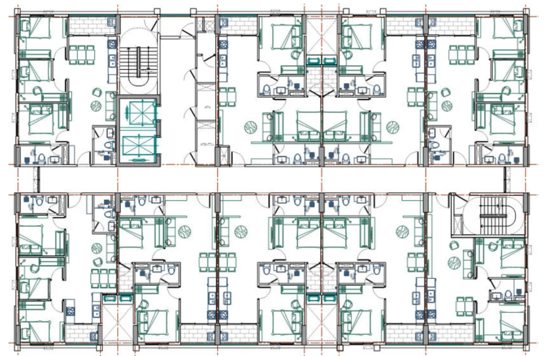
Mặt bằng dự án GHomes Cao Xanh
Sản phẩm dự án GHomes Cao Xanh Quảng Ninh
Căn hộ 1 phòng ngủ
Diện tích 37,1-44,1m2
Căn hộ 3 phòng ngủ
Diện tích: 77m2

Mặt bằng bố trí căn hộ tầng 3-10 nhà OXH-1
Tiện ích dự án GHomes Cao Xanh Quảng Ninh
- Thương mại dịch vụ
- Bãi đỗ xe
- Văn phòng…
Pháp lý dự án GHomes Cao Xanh Quảng Ninh
GHomes Cao Xanh có tên pháp lý là dự án nhà ở xã hội tại quỹ đất 20% thuộc dự án nhóm nhà ở phía Tây Bắc đường Trần Thái Tông tại phường Cao Xanh, thành phố Hạ Long.
Ngày 24/5/2025, UBND tỉnh Quảng Ninh ban hành Quyết định số 1608/QĐ-UBND về việc quyết định chấp thuận chủ trương đầu tư dự án.
Ngày 4/9/2025, UBND tỉnh Quảng Ninh ban hành Quyết định số 3409/QĐ-UBND về việc giao chủ đầu tư thực hiện dự án.
Ngày 18/11/2025, UBND phường Cao Xanh ban hành Quyết định số 756/QĐ-UBND về việc chấp thuận quy hoạch tổng mặt bằng tỷ lệ 1/500 dự án.
Tiến độ dự án GHomes Cao Xanh Quảng Ninh
Dự án được khởi công ngày 19/12/2025.
Giá bán trung bình: 21.589.267 đồng/m2
Thông tin chủ đầu tư dự án GHomes Cao Xanh Quảng Ninh
Chủ đầu tư dự án là Liên danh Công ty Cổ phần Bất động sản GLAND và Công ty Cổ phần Tư vấn Đầu tư Tài chính Toàn Cầu.
Công ty Cổ phần Bất động sản GLAND hoạt động từ năm 2023, địa chỉ trụ sở là số 75 phố Hàng Bồ, phường Hoàn Kiếm, TP.Hà Nội. Người đại diện pháp luật là ông Cao Chí Dũng. Doanh nghiệp hoạt động chính trong lĩnh vực kinh doanh bất động sản, quyền sử dụng đất thuộc chủ sở hữu, chủ sử dụng hoặc đi thuê.
Công ty Cổ phần Tư vấn Đầu tư Tài chính Toàn Cầu hoạt động từ năm 2006, địa chỉ trụ sở là số 30A phố Lý Thường Kiệt, phường Cửa Nam, TP.Hà Nội. Người đại diện pháp luật là ông Nguyễn Bá Tiến. Doanh nghiệp hoạt động chính trong lĩnh vực kinh doanh bất động sản, quyền sử dụng đất thuộc chủ sở hữu, chủ sử dụng hoặc đi thuê.
Thông tin nhanh dự án GHomes Cao Xanh Quảng Ninh
| Dự án: GHomes Cao Xanh | Tổng diện tích: 4.101,3m2 |
| Vị trí: Phường Cao Xanh, tỉnh Quảng Ninh | Tổng vốn đầu tư: 592 tỷ đồng |
| Loại hình: Căn hộ | Năm khởi công: 19/12/2025 |
| Chủ đầu tư: Liên danh Công ty Cổ phần Bất động sản GLAND và Công ty Cổ phần Tư vấn Đầu tư Tài chính Toàn Cầu | Năm hoàn thành: |