Chi tiết dự án
Quy mô dự án Berriver Jardin Long Biên

Berriver Jardin được xây dựng trên khu đất có tổng diện tích 30.000 m2 với mật độ xây dựng 38%. Được thiết kế xây dựng với mô hình tòa tháp căn hộ cao tầng với quy mô dự án bao gồm 3 tòa nhà thương mại N02, N04 và N05. Trong đó, tòa tháp N02 và N04 cao 20 tầng, toàn N05 cao 18 tầng, mỗi tòa sở hữu riêng 1 tầng hầm.

Mặt bằng tổng thể dự án Berriver Jardin
Sản phẩm chính của dự án bao gồm 476 căn hộ có diện tích từ 48 m2 – 183 m2 và được thiết kế từ 1 – 4 phòng ngủ. Mỗi tòa được thiết kế với kết cầu:
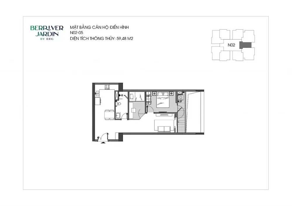
Tòa N02: Sở hữu 171 căn hộ, được phân bổ với 9 căn hộ/1 sàn với 3 thang máy. Các căn hộ được thiết kế từ 2 - 3 phòng ngủ, căn 1 phòng ngủ + 1 có diện tích từ 59,48 m2; căn 2 phòng ngủ diện tích từ 78,47 m2 và căn 3 phòng ngủ có diện tích từ 100,15 - 113,2 m2.

Mặt bằng tòa nhà N02 của dự án Berriver Jardin




Thiết kế căn hộ tại tòa N02
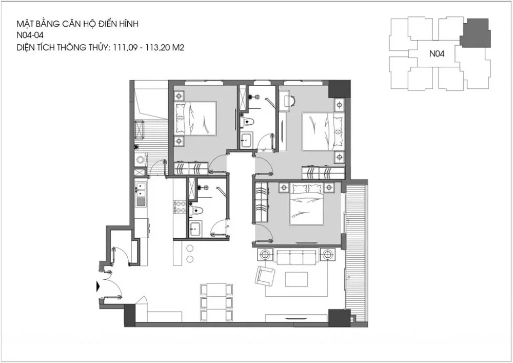
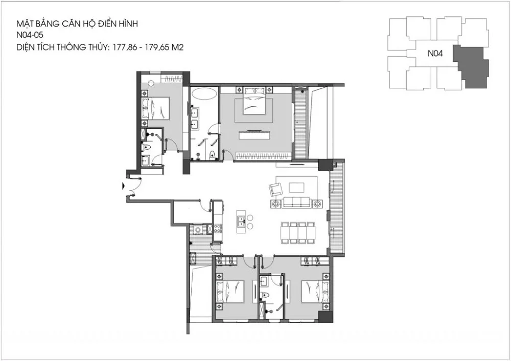
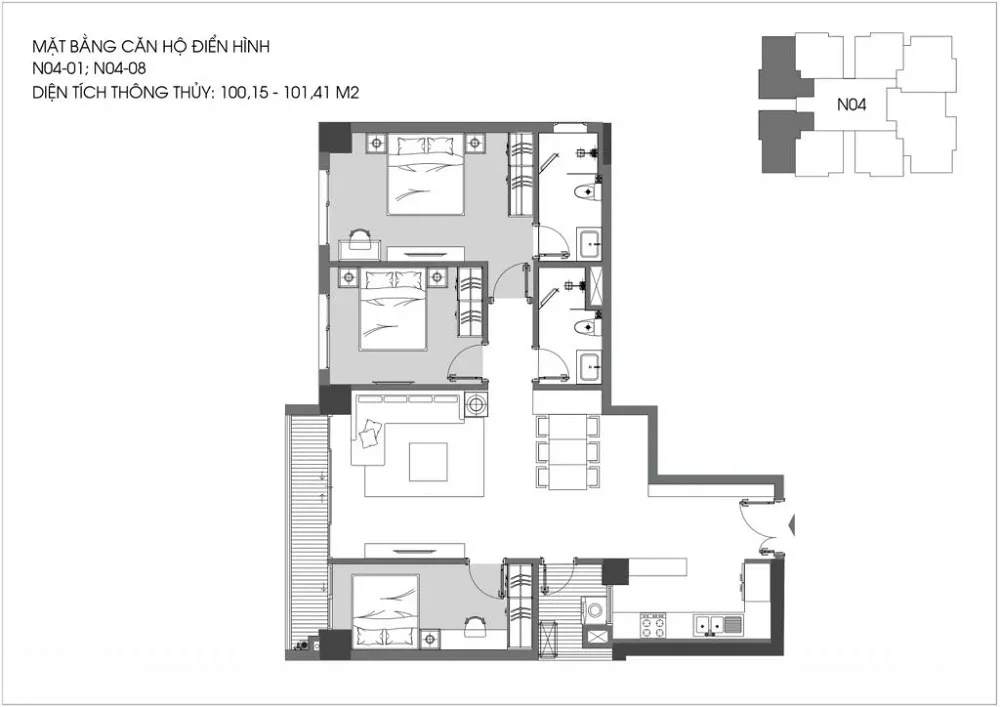
Tòa N04: Sở hữu 152 căn hộ với 8 căn hộ/1 sàn và 3 thang máy. Tòa tháp sở hữu các căn hộ từ 2 - 4 phòng ngủ, trong đó căn 2 phòng ngủ + 1 có diện tích từ 78,47 m2; căn 3 phòng ngủ diện tích 100,15 m2 và căn 4 phòng ngủ có diện tích từ 177,86 m2. Tất cả đều là căn góc, diện tích đa dạng với chiều cao thông thủy 2,65 – 2,75 m.

Mặt bằng tòa nhà N04 của dự án Berriver Jardin




Thiết kế căn hộ tại tòa tháp N04
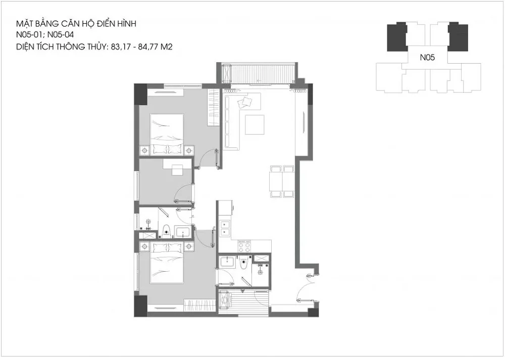
Tòa N05: Sở hữu 153 căn hộ với 8 căn hộ/1 sàn và 3 thang máy. Mỗi căn hộ sở hữu diện tích chỉ từ 48 m2 với căn 1 phòng ngủ tới 118 m2 với căn 3 phòng ngủ +1. Hầu hết đều là căn góc thoáng, diện tích đa dạng, chiều cao thông thủy 2,65 - 2,75 m.

Mặt bằng tòa nhà N05 của dự án Berriver Jardin




Thiết kế căn hộ tại tòa tháp N05
Phần lớn căn hộ Berriver Jardin là căn góc thoáng, ngoài ra còn được thiết kế có ban công và phòng ngủ đón ánh sáng tự nhiên.

Phối cảnh căn hộ mẫu dự án Berriver Jardin
Dự án chủ đầu tư chú trọng đến thiết kế các khu vực mảng xanh, cùng hệ thống tiệ ích nội khu bao gồm: Bể bơi ngoài trời, vườn cảnh quan, đường dạo bộ, đường dưỡng sinh, khu thể thao ngoài trời, khu vui chởi trẻ em, vườn BBQ, đài phun nước, sân tập yoga, lối vào hầm gửi xe, cùng hệ thống các cửa hạng thương mại tại khối đế...


Phối cảnh tiệ ích tại dự án Berriver Jardin
Từ Berriver Jardin, cư dân cũng có thể di chuyển thuận tiện tới các khu vực lân cận thông qua hai tuyến đường QL5 và đường Nguyễn Văn Cừ như: trung tâm thủ đô Hà Nội, TP. Hải Phòng, tỉnh Hải Dương, Bắc Ninh,…
Thông tin dự án Berriver Jardin Long Biên từ CafeLand
Berriver Jardin có chủ đầu tư là Công ty Cổ phần Đầu tư Xây dựng Số 9 Hà Nội (Hanco 9). Dự án được phát triển bởi Tập đoàn BRG Group.
Công ty Cổ phần Đầu tư Xây dựng Số 9 Hà Nội (Hanco 9) tiền thân là Công ty Xây dựng Đông Anh – một trong những công ty con của Tổng công ty Cổ phần Đầu tư và Phát triển nhà Hà Nội (Handico), được thành lập từ tháng 3/1976. Đến năm 2005, công ty đã đổi tên và hoàn thành cổ phần hóa theo quyết định của UBND thành phố Hà Nội.
Ngoài Beriver Jardin, Hanco 9 còn là chủ đầu tư của nhiều dự án bất động sản và công trình như: Thăng Long Tower, khách sạn Southern Place TP. HCM, khu nhà sinh thái xã Lâm Sơn tỉnh Hòa Bình….
Beriver Jardin là một phần của tổng thể dự án Berriver Long Biên đã được Hanco 9 ra mắt vào năm 2012. Dự án Berriver Long Biên gồm 5 tòa chung cư với tổng vốn đầu tư 3.000 tỷ, đến nay đã đi vào hoạt động 2 tòa là N01 và N03.
Giá bán căn hộ tham khảo trên thị trường của dự án chung cư Beriver Jardin từ 32 triệu/m2.
Thông tin nhanh dự án Berriver Jardin Long Biên
|
Dự án: Berriver Jardin |
Tổng diện tích: 30.000 m2 |
|
Vị trí: Số 390 Nguyễn Văn Cừ, phường Bồ Đề, quận Long Biên, Hà Nội |
Tổng vốn đầu tư: 3.000 tỷ đồng |
|
Loại hình: Căn hộ |
Ngày khởi công: Năm 2018 |
|
Chủ đầu tư: Công ty Cổ phần Đầu tư Xây dựng Số 9 Hà Nội (Hanco 9) Đơn vị phát triển: Tập đoàn BRG Group |
Năm hoàn thành: Quý 4/2021 |