Chi tiết dự án
Quy mô dự án Bình Minh Garden Long Biên

Bình Minh Garden nằm trên khu đất có tổng diện tích 40.118,9 m2 (chia làm hai khu: khu cao tầng và khu thấp tầng). Trong đó, diện tích dành cho khu nhà phố thương mại (khu thấp tầng) là 9.511,5 m2; diện tích xây dựng khoảng 6.665,2 m2 với mật độ xây dựng 70,1%; tổng diện tích sàn xây dựng khoảng 33.796,1 m2.

Nhà phố thương mại Bình Minh Garden
![]() |
![]() |
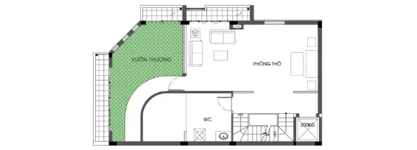
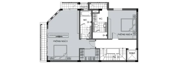
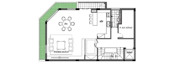
Dự án với tổng số 101 căn nhà phố thương mại, có diện tích dao động từ 78,7 m2 – 146,4 m2. Các căn nhà phố thương mại Bình Minh Garden còn được thiết kế 2 mặt tiền, có lối đi riêng, để đáp ứng nhu cầu kinh doanh và không gian riêng tư cho gia đình.
|
|
Về mặt thiết kế, nhà phố thương mại Bình Minh Garden cao 5 tầng, trong đó trần tầng một cao 3,9 m, cho không gian kinh doanh. Tầng 5 có ban công, để có thể sử dụng làm tiểu cảnh, sân vườn,…Một phần các căn nhà phố thương mại tại đây giáp mặt tền đường lớn Đức Giang, hướng Tây Bắc. Phần khác nhìn ra đường quy hoạch 17m, hướng Đông Nam.
Căn hộ Bình Minh Garden

Giai đoạn 2 dự án triển căn hộ chung cư trên khu đất rộng 5.613 m2, diện tích xây dựng 2.245 m2 với mật độ xây dựng 40%, tổng diện tích sàn xây dựng 77.039 m2.

Quy mô gồm 2 block căn hộ cao 25 tầng nổi và 3 tầng hầm, từ tầng 1 - 2 là khối đế trung tâm thương mại, từ tầng 3 - 24 dành cho các căn hộ ở được bố trí 22 căn/sàn, tầng 25 bố trí 10 căn/sàn cùng 2 sân vườn rộng 820m2 và bể bơi tràn bờ rộng 97,5 m2. Dự án cung cấp tổng số 494 căn hộ, trong đó căn hộ 2 phòng ngủ có diện tích từ 73 - 74 m2, căn hộ 3 phòng ngủ từ 91 - 104 m2 (thiết kế 2 ban công/căn hộ).
![]() |
![]() |
Ngoài ra, bên trong dự án có các tiện ích như: công viên Ánh Dương, phòng tập gym và yoga, khu vui chơi ngoài trời, khu đọc sách, hồ bơi thác tràn với diện tích 450 m2 và hệ thống cây xanh sky garden với tích 850 m2.
Thông tin dự án Bình Minh Garden Long Biên
Dự án nhà phố thương mại Bình Minh Garden do Công ty Cổ phần Đầu tư và Phát triển Bất động sản Thế Kỷ (Cen Invest) làm chủ đầu tư. Nhà thầu thi công gói thầu nhà phố thương mại Bình Minh Garden là: Công ty Cổ phần Confitech số 3 và Công ty Cổ phần Đầu tư Xây dựng Kỹ thuật và Thương mại Anh Phát. Tổng mức đầu tư của dự án khoảng 1.480,7 tỷ đồng.
Giá bán được tham khảo trên thị trường của dự án Bình Minh Garden từ 7,3 - 14 tỉ đồng/căn đối với nhà phố thương mại, từ 2,2 - 2,6 tỉ đồng/căn đối với căn hộ.
![]() |
![]() |
Hạng mục nhà phố thương mại Bình Minh Garden được khởi công từ quý 3/2018, tính đến tháng 03/2020, dự án đã hoàn thiện 90% các hạng mục công trình.
Được biết, khu đất này trước khi về tay Cen Invest là dự án Khu nhà ở, dịch vụ thương mại và văn phòng Plaschem do Công ty Cổ phần Hóa chất nhựa làm chủ đầu tư.
Cụ thể, vào ngày 20/01/2020, UBND TP.Hà Nội đã ban hành Quyết định số 398/QĐ-UBND về việc cho phép Công ty Cổ phần Hóa chất nhựa chuyển nhượng toàn bộ dự án Khu nhà ở, dịch vụ thương mại và văn phòng Plaschem tại số 93 phố Đức Giang (phường Đức Giang, quận Long Biên) cho Công ty Cổ phần Đầu tư và Phát triển bất động sản Thế Kỷ (Cen Invest).
Theo phê duyệt quy mô sử dụng đất của dự án này là 40.118,9 m2. Trong đó:
Công trình hỗn hợp dịch vụ thương mại và nhà ở (tại ô đất ký hiệu HH) có tổng diện tích khoảng 5.613,1 m2, diện tích xây dựng khoảng 2.245 m2, mật độ xây dựng 40%, tổng diện tích sàn xây dựng khoảng 61.634 m2, tầng cao công trình 25 tầng và 3 tầng hầm, số căn hộ 494 căn, dân số dự kiến 1.827 người.
Công trình nhà ở thấp tầng và hạ tầng giao thông, cây xanh đơn vị ở (tại ô đất ký hiệu NO-CX) có tổng diện tích đất khoảng 16.122,1 m2, trong đó, công trình nhà ở thấp tầng có tổng diện tích đất khoảng 9.511,5 m2, diện tích xây dựng khoảng 6.665,2 m2, mật độ xây dựng 70,1%, tổng diện tích sàn xây dựng khoảng 33.796,1m2, tầng cao công trình 05 tầng, số căn hộ 101 căn, dân số dự kiến 373 người.
Thông tin nhanh dự án Bình Minh Garden Long Biên
|
Dự án: Bình Minh Garden |
Tổng diện tích: 40.118,9 m2 |
|
Vị trí: Số 93 Đức Giang, phường Đức Giang, quận Long Biên, Hà Nội |
Tổng vốn đầu tư: 1.480,7 tỷ đồng |
|
Loại hình: Nhà phố thương mại, căn hộ |
Ngày khởi công: Quý 3/2018 |
|
Chủ đầu tư: Công ty Cổ phần Đầu tư và Phát triển Bất động sản Thế Kỷ (Cen Invest) |
Năm hoàn thành: |










