Quy mô dự án Sol Lake Villa - Khu đô thị Dương Nội

Biệt thự Sol Lake Villa nằm trong khu đất có tổng diện tích 22,86 ha. Được thiết kế xây dựng theo mô hình biệt thự liền kề với số lượng 109 căn, diện tích đất mỗi căn từ 162 – 336 m2.

Mặt bằng phân lô biệt thự tại dự án Sol Lake Villa
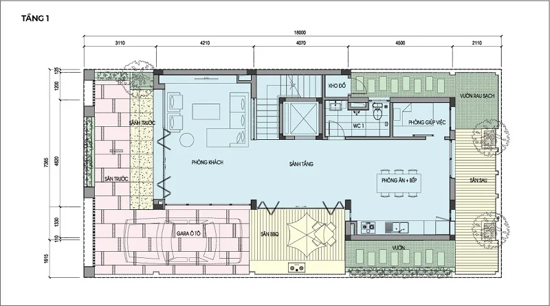
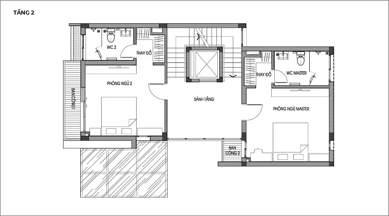
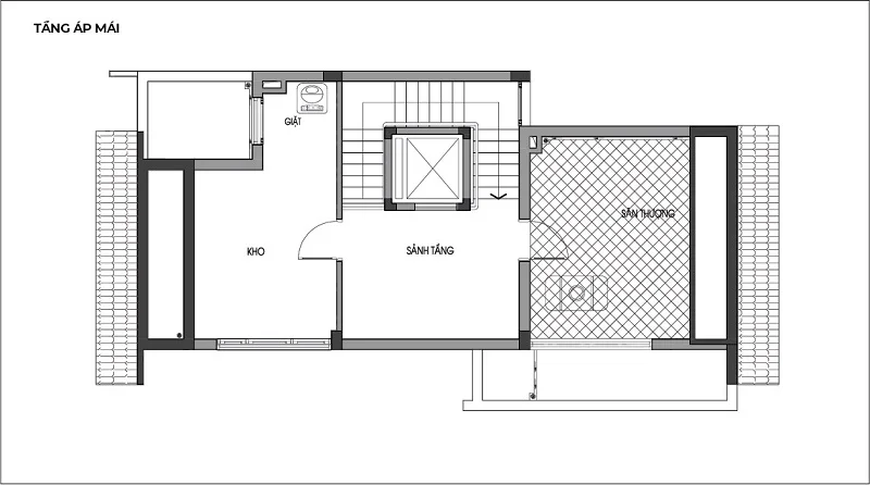
Các sản phẩm biệt thự tại Sol Lake Villa được thiết kế với chiều cao 3 tầng và 1 tum với tổng diện tích sàn xây dựng từ 315 – 525 m2. Bao gồm 4 phòng ngủ, 1 phòng thờ, 1 phòng kho, phòng khách, bếp, sân vườn và sân thượng.




Mặt bằng thiết kế các căn biệt thự tại Sol Lake Villa


Phối cảnh biệt thự tại Sol Lake Villa
Dự án Sol Lake Villa sở hữu các tiện ích nội khu bao gồm: công viên Âm Nhạc có tổng diện tích 5,94 ha, hồ Cây Đàn 1,3 ha, sân tập thể thao, vườn đa năng, vườn dã ngoại, khu vui chơi trẻ em.

Phối cảnh công viên tại Sol Lake Villa
Bên cạnh đó còn các tiện ích ngoại khu lân cận, hệ thống trường học liên cấp trong và ngoài nước, hệ thống cơ sở y tế, và trung tâm thương mại, khu vui chơi giải trí như: ĐH Phenikaa, công viên Thiên Văn Học, Aeon Mall, bệnh viện đa khoa Hà Đông…

Thông tin nhanh dự án Sol Lake Villa - Khu đô thị Dương Nội
Chủ đầu tư dự án Sol Lake Villa là Công ty Cổ phần Tập đoàn Nam Cường Hà Nội, được thành lập ngày 08/07/2009, có trụ sở đặt tại đường Đông A, Khu đô thị mới Hòa Vượng, phường Lộc Hoà, thành phố Nam Định, tỉnh Nam Định.
Theo công bố thay đổi của doanh nghiệp ngày 21/10/2021, doanh nghiệp có tổng voosnd điều lệ 4.050 tỷ đồng. Doanh nghiệp hoạt động trong lĩnh vực bất động sản với những dự án như: Khu đô thị Dương Nội (Hà Nội), Khu đô thị Cổ Nhuế (Hà Nội), Khu đô thị Hòa Vượng (Nam Định), Khu tổ hợp DVDL nghỉ dưỡng Nam Cường Phú Quốc…
Dự án Sol Lake Villa hiện đã được hoàn thành và bàn giao cho khách hàng vào quý 2/2022.
Thông tin nhanh dự án Sol Lake Villa - Khu đô thị Dương Nội
| Dự án: Sol Lake Villa | Tổng diện tích: 22,86 ha |
| Vị trí: Đường Tố Hữu, phường Yên Nghĩa, quận Hà Đông, Hà Nội | Tổng vốn đầu tư: |
| Loại hình: Biệt thự | Năm khởi công: |
| Chủ đầu tư: Công ty Cổ phần Tập đoàn Nam Cường Hà Nội | Năm hoàn thành: Quý 2/2022 |
Mạnh Dũng